დოკუმენტის სტრუქტურა
განმარტებების დათვალიერება
დაკავშირებული დოკუმენტები
დოკუმენტის მონიშვნები
| შენობა-ნაგებობისა და შენობა-ნაგებობის ერთეულის შიდა აზომვითი სამუშაოს შესრულებისა და დოკუმენტირების წესის დამტკიცების შესახებ | |
|---|---|
| დოკუმენტის ნომერი | 315 |
| დოკუმენტის მიმღები | საქართველოს მთავრობა |
| მიღების თარიღი | 03/10/2024 |
| დოკუმენტის ტიპი | საქართველოს მთავრობის დადგენილება |
| გამოქვეყნების წყარო, თარიღი | ვებგვერდი, 04/10/2024 |
| ძალაში შესვლის თარიღი | 01/01/2025 |
| სარეგისტრაციო კოდი | 040150000.10.003.024710 |
|
შენობა-ნაგებობისა და შენობა-ნაგებობის ერთეულის შიდა აზომვითი სამუშაოს შესრულებისა და დოკუმენტირების წესის დამტკიცების შესახებ
|
| მუხლი 1 |
„საჯარო რეესტრის შესახებ“ საქართველოს კანონის 112 მუხლის მე-2 პუნქტისა და „საჯარო რეესტრის შესახებ“ საქართველოს კანონში ცვლილების შეტანის თაობაზე“ 2023 წლის 15 დეკემბრის №4016-XIIIმს-Xმპ საქართველოს კანონის მე-2 მუხლის პირველი პუნქტის „ბ“ ქვეპუნქტის შესაბამისად, დამტკიცდეს თანდართული „შენობა-ნაგებობისა და შენობა-ნაგებობის ერთეულის შიდა აზომვითი სამუშაოს შესრულებისა და დოკუმენტირების წესი“ (დანართი №1).
|
| მუხლი 2 |
ამ დადგენილების ამოქმედებამდე, სსიპ – საჯარო რეესტრის ეროვნული სააგენტოსათვის წარდგენილ განცხადებებთან დაკავშირებით გადაწყვეტილებები მიღებულ იქნეს მოთხოვნის წარდგენის მომენტისათვის მოქმედი წესის შესაბამისად.
|
| მუხლი 3 |
დადგენილება ამოქმედდეს 2025 წლის 1 იანვრიდან.
|
|
დანართი №1
|
შენობა-ნაგებობისა და შენობა-ნაგებობის ერთეულის შიდა აზომვითი სამუშაოს შესრულებისა და დოკუმენტირების წესი
|
მუხლი 1. შიდა აზომვითი ნახაზის ცნება და შიდა აზომვითი სამუშაოების შემსრულებელი პირის ვალდებულება
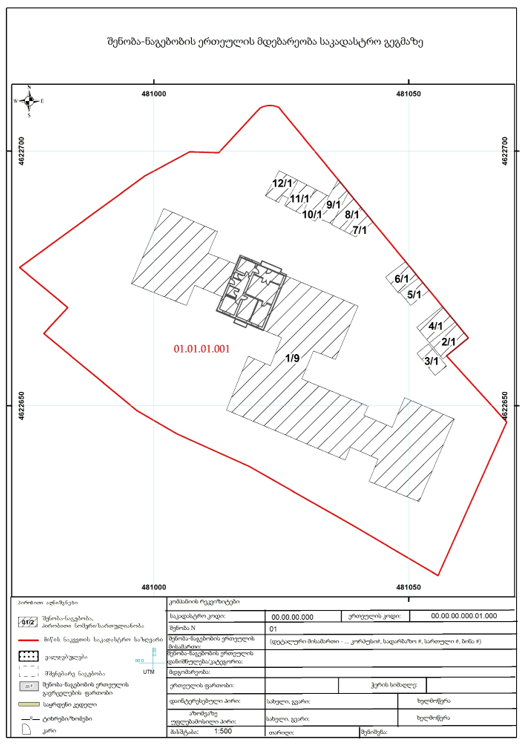
1. შიდა აზომვითი ნახაზი არის შენობა-ნაგებობის/შენობა-ნაგებობის ერთეულის კონფიგურაციის, სართულიანობის, სამართლებრივი შეზღუდვის ფარგლებისა და ამ წესით გათვალისწინებული სხვა მონაცემების გრაფიკულად და ტექსტურად გამოსახული ზუსტი ინფორმაციის ამსახველი დოკუმენტი. 2. ამ წესის შესაბამისად, შიდა აზომვითი ნახაზი მზადდება ისეთ შენობა-ნაგებობაზე/შენობა-ნაგებობის ერთეულზე, რომელიც არის სამშენებლო მასალებისა და ნაკეთობებისგან შექმნილი კონსტრუქციული სისტემა, სივრცე, რომელიც გრუნტთან უძრავადაა დაკავშირებული და კედლებით ან/და სხვა შემომზღუდავი კონსტრუქციებით არის შემოსაზღვრული. შენობა უნდა ქმნიდეს გადახურულ სივრცეს, ხოლო ნაგებობა შეიძლება იყოს გადახურული ან გადახურვის გარეშე. რეგისტრაციის მიზნებისთვის შენობა-ნაგებობა შეიძლება იყოს მშენებარე, აშენებული ან დანგრეული. 3. ერთ მიწის ნაკვეთზე რამდენიმე შენობა-ნაგებობის განლაგების შემთხვევაში, შიდა აზომვითი ნახაზი მზადდება მიწის ნაკვეთზე განლაგებული თითოეული შენობა-ნაგებობისთვის, ინდივიდუალურად, ცალ-ცალკე. 4. შენობა-ნაგებობის ერთეულის შიდა აზომვითი ნახაზი მზადდება შენობა-ნაგებობაში არსებულ, ერთ სისტემაში გაერთიანებულ, ურთიერთდაკავშირებულ, იზოლირებულ, ცალკე უფლების ობიექტზე (ერთეულზე). 5. სსიპ – საჯარო რეესტრის ეროვნული სააგენტო ვალდებულია, დაეყრდნოს შენობა-ნაგებობის/შენობა-ნაგებობის ერთეულის შიდა აზომვით ნახაზს, თუ იგი აკმაყოფილებს ამ წესითა და საქართველოს კანონმდებლობით შიდა აზომვითი ნახაზისთვის დადგენილ სხვა აუცილებელ მოთხოვნებს. 6. შიდა აზომვითი სამუშაოების შემსრულებელი პირი ვალდებულია, შიდა აზომვითი ნახაზის შედგენის მიზნით, მონაცემები შეაგროვოს ობიექტის ადგილზე აზომვის საფუძველზე. 7. შიდა აზომვითი სამუშაოების შემსრულებელი პირი ვალდებულია, შიდა აზომვითი ნახაზი შეასრულოს ამ წესით დადგენილი სტანდარტების შესაბამისად. მუხლი 2. შიდა აზომვითი ნახაზის შედგენის ზოგადი ტექნიკური პირობები 1. შიდა აზომვითი ნახაზი შედგენილ უნდა იქნეს მეტრული სისტემით. 2. შიდა აზომვითი ნახაზის შესრულებისას 10 მ-მდე სწორხაზოვანი გვერდებისთვის (გარდატეხის წერტილებს შორის მონაკვეთისთვის) აზომვის ცდომილება არ უნდა აღემატებოდეს 0.05 მ-ს, ხოლო 10 მეტრზე გრძელი სწორხაზოვანი გვერდებისათვის დასაშვები ცდომილება გამოითვლება შემდეგი წესით: 0.05 მ-ს ემატება გვერდის სიგრძისა და 10 მეტრის სხვაობის 0.1%. 3. შიდა აზომვით ნახაზზე, ამ წესის მოთხოვნების გათვალისწინებით, ასახული უნდა იყოს: ა) შენობა-ნაგებობის გეგმა სართულის/სართულების მითითებით; ბ) ცალკე უფლების ობიექტი (არსებობის შემთხვევაში); გ) უფლებრივი შეზღუდვის ან/და დატვირთვის საზღვრები (არსებობის შემთხვევაში); დ) შენობა-ნაგებობის ერთეულის საკადასტრო კოდი (არსებობის შემთხვევაში), ადგილმდებარეობა/მისამართი, საკადასტრო გეგმაზე მითითებული შენობა-ნაგებობის ნომერი, სართულისა და შენობა-ნაგებობის ერთეულის ნომერი; ე) შენობა-ნაგებობის ან მისი ერთეულის ფუნქციური დანიშნულება, რომელიც შეიძლება იყოს საცხოვრებელი ან არასაცხოვრებელი და რომლის რეგისტრაცია დასაშვებია „საჯარო რეესტრის შესახებ“ საქართველოს კანონის 156 მუხლის მე-7 და მე-8 პუნქტების მიხედვით; ვ) საცხოვრებელი დანიშნულების შენობა-ნაგებობის ან მისი ერთეულის კატეგორია, რომელიც შეიძლება, იყოს: საცხოვრებელი ბინა, მრავალბინიანი საცხოვრებელი სახლი, ინდივიდუალური საცხოვრებელი სახლი, ბლოკირებული (შეჯგუფებული) ტიპის ინდივიდუალური საცხოვრებელი სახლები (ე. წ. „თაუნჰაუსი“), მანსარდა; ზ) არასაცხოვრებელი დანიშნულების შენობა-ნაგებობის ან მისი ერთეულის კატეგორია, რომელიც შეიძლება იყოს საოფისე ფართი, სავაჭრო/კომერციული ფართი, სასაწყობე ფართი, დამხმარე შენობა-ნაგებობა, საწარმოო ობიექტი, რელიგიური/საკულტო შენობა-ნაგებობა, ტექნიკური სართული, ავტოსადგომი, სპეციალური დანიშნულების ნაგებობა, სარდაფი, ნახევარსარდაფი, სხვენი და სხვ.; თ) მრავალფუნქციური შენობის შემთხვევაში, საცხოვრებელი და არასაცხოვრებელი დანიშნულების კატეგორიები, ამ პუნქტის „ვ“ და „ზ“ ქვეპუნქტების მიხედვით; ი) შენობა-ნაგებობის ან მისი ერთეულის მდგომარეობა (მშენებარე, აშენებული, დანგრეული); კ) შენობა-ნაგებობის სართულების, შენობა-ნაგებობის ერთეულის ფართობი, დამრგვალებული მეასედამდე კვადრატულ მეტრებში; ლ) შენობა-ნაგებობის სართულის (სართულების), შენობა-ნაგებობის ერთეულის გვერდების ზომები; მ) აზომვითი სამუშაოების შესრულების თარიღი; ნ) აზომვაზე უფლებამოსილი და დაინტერესებული პირის ხელმოწერა; ო) სხვა ელემენტები, რომლებიც განსაზღვრულია ამ წესით. 4. ობიექტის შიდა აზომვითი ნახაზი ქაღალდის მატარებელზე წარმოდგენილი უნდა იყოს 1:50-იდან 1:1000 მასშტაბის ჩათვლით, 50-ე ან 100-ზე დამრგვალებული ერთ-ერთი მასშტაბით (1:50; 1:100; 1:150; 1:200; 1:300; 1:500; 1:1000 და სხვა). 5. შენობა-ნაგებობის კონსტრუქციული სართულიანობა განისაზღვრება ერთი შენობა-ნაგებობის მიწისქვეშა, მიწისა და მიწისზედა სრული და არასრული სართულების ჯამით, რომელიც აითვლება ერთი შენობის ძირითადი კონსტრუქციის საძირკვლის ქვედა ნიშნულიდან (ხიმინჯების სიმაღლის გამოკლებით, მათი არსებობის შემთხვევაში) შენობის ზედა ნიშნულამდე. შენობა-ნაგებობის მიწისზედა სართულიანობა განისაზღვრება ერთი შენობა-ნაგებობის მიწისა და მიწისზედა სრული და არასრული სართულების ჯამით. 6. ერთ სართულად ითვლება სართული, რომლის იატაკიც მდებარეობს ერთ ნიშნულზე, ასევე სართული, რომლის იატაკის დონეებს შორის სხვაობა არ აღემატება 1.8 მეტრს. 7. შენობა-ნაგებობის/შენობა-ნაგებობის ერთეულის გამოყენებული ფართობი განისაზღვრება მის შემომსაზღვრელ კედლებს შორის არსებული იატაკის ძირითადი კონსტრუქციის ზედაპირის ფართობით, მათ შორის, არსებული კედლებისა და კოლონების ფართობის გარეშე (შენობა-ნაგებობის/ერთეულის ფართობში არ იანგარიშება ასევე საყრდენ კედლებსა და ერთეულის შემომსაზღვრელ კედლებში არსებული ღიობები, საინჟინრო და სავენტილაციო არხები, ერთეულში არსებული იატაკის სხვადასხვა დონის დამაკავშირებელი შიდა კიბე და მისი ბაქანი). ფართობში შედის ლოჯიის, აივნის, ტერასისა და ვერანდის ფართობები, მათი არსებობის შემთხვევაში. 8. შიდა აზომვითი ნახაზის შესადგენად უძრავი ნივთის ადგილმდებარეობის იდენტიფიცირებასა და კატეგორიის მითითებაზე პასუხისმგებელია ამ ნივთის აზომვაზე დაინტერესებული პირი. ობიექტის შიდა აზომვითი ნახაზის შედგენისას ამზომველმა უნდა გაითვალისწინოს საქართველოს სივრცის დაგეგმარების, არქიტექტურული და სამშენებლო საქმიანობის კოდექსისა და სხვა ნორმატიული აქტების მოთხოვნები. სამუშაოების სრულყოფილად შესრულებისა და შიდა აზომვითი ნახაზის მონაცემთა სისწორისთვის პასუხისმგებელია ნახაზის შემსრულებელი პირი. მუხლი 3. შიდა აზომვითი ნახაზის ფორმა 1. შიდა აზომვითი ნახაზის: ა) პირველ გვერდზე წარმოდგენილი უნდა იყოს შენობა-ნაგებობის ერთეულის მდებარეობა საკადასტრო გეგმაზე, შემდეგი ნიმუშის მიხედვით:
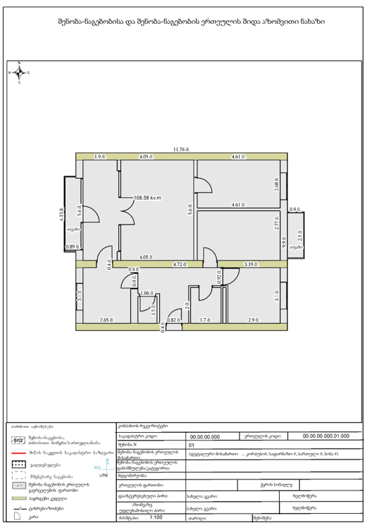
ბ) მეორე გვერდზე წარმოდგენილი უნდა იყოს შენობა-ნაგებობის ერთეულის შიდა აზომვითი ნახაზი შემდეგი ნიმუშის მიხედვით:
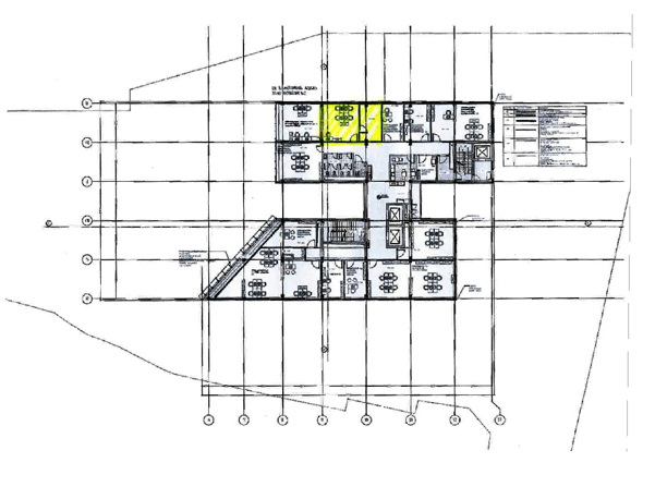
2. შიდა აზომვით ნახაზს უნდა ერთოდეს შენობა-ნაგებობის ერთეულის მდებარეობის მონიშვნა შენობის სართულებრივ გეგმაზე (ტექნიკური ინვენტარიზაციის არქივში დაცული მონაცემების ან/და სამშენებლო პროექტის მიხედვით), ხოლო ასეთის არარსებობის შემთხვევაში – შესაბამისი რეგისტრირებული შენობის კონტურზე, შემდეგი ნიმუშების მიხედვით: ა) მონიშვნა ტექნიკური ინვენტარიზაციის არქივში დაცულ შენობის სართულებრივ გეგმაზე:
ბ) მონიშვნა სამშენებლო პროექტზე:
3. შიდა აზომვითი ნახაზი უნდა შესრულდეს შემდეგი სახით:
4. შიდა აზომვით ნახაზზე უნდა მოინიშნოს შენობა-ნაგებობის ერთეულის ის ნაწილი, რომელზეც გაცემული არ არის სამშენებლო დოკუმენტაცია, შენობა-ნაგებობის ვარგისად აღიარების (ექსპლუატაციაში მიღების) დამადასტურებელი დოკუმენტი ან ლეგალიზაციის აქტი, ან, რომელიც საქართველოს კანონმდებლობის შესაბამისად კანონიერად არ მიიჩნევა. მუხლი 4. შიდა აზომვითი ნახაზის ქაღალდისა და ციფრული ვერსიის შესაბამისობა შიდა აზომვითი ნახაზის ქაღალდისა და ციფრული ვერსიის სტანდარტული ფორმა შედგება ორი – გრაფიკული და ტექსტური – ნაწილისგან, რომლებშიც წარმოდგენილი ინფორმაცია ურთიერთშესაბამისი უნდა იყოს. მუხლი 5. შიდა აზომვითი ნახაზის ქაღალდის ვერსია 1. შიდა აზომვითი ნახაზის ქაღალდის ვერსია უნდა მოიცავდეს: ა) ამ წესის მე-2 მუხლით გათვალისწინებულ მონაცემებს; ბ) შენობა-ნაგებობის სართულების, შენობა-ნაგებობის ერთეულის გვერდების ზომებს (მიეთითება იქ, სადაც მათი გამოსახვა არის შესაძლებელი), შემდეგი ნიმუშის მიხედვით:
გ) უძრავ ნივთთან დაკავშირებით არსებულ ვალდებულებას. უფლებრივი შეზღუდვის ან/და დატვირთვის (სერვიტუტი, უზუფრუქტი, იჯარა, ქირავნობა, აღნაგობა, იპოთეკა და სხვა, შესაბამისი ფართობის (კვ/მ) მითითებით) გრაფიკული საზღვრების (გრაფიკულად გამოსახვისა და დოკუმენტირების შესაძლებლობის არსებობის შემთხვევაში) პირობითი აღნიშვნები უნდა გამოისახოს ერთგვაროვნად, შემდეგი ნიმუშის მიხედვით:
დ) კომპანიის რეკვიზიტებსა და ემბლემას/ლოგოს (ასეთის არსებობის შემთხვევაში); ე) პირობით აღნიშვნებს, რომლებითაც წარმოდგენილი უნდა იყოს გრაფიკული ინფორმაცია (სხვა ობიექტების დატანის აუცილებლობის შემთხვევაში, შესაბამისი აღნიშვნა ლეგენდაში უნდა დაემატოს). პირობითი აღნიშვნები მიეთითება შემდეგი ნიმუშის მიხედვით:
2. შენობა-ნაგებობის ერთეულების დაყოფის შემთხვევაში, შიდა აზომვითი ნახაზის ციფრულ და ქაღალდის ვერსიებს დამატებით უნდა დაერთოს დაყოფის ამსახველი სქემატური ნახაზი, შემდეგი ნიმუშის მიხედვით:
3. შენობა-ნაგებობის რეგისტრირებული ერთეულების გაერთიანების ამსახველ შიდა აზომვით ნახაზზე უნდა მიეთითოს ერთეულების საკადასტრო კოდები. 4. შიდა აზომვითი ნახაზის ქაღლდის ვერსია, ამ წესის შესაბამისად, სრულყოფილად უნდა შეივსოს და შეესაბამებოდეს შიდა აზომვითი ნახაზის ციფრულ ვერსიას. მუხლი 6. შიდა აზომვითი ნახაზის ციფრული ვერსიის შესრულების ინსტრუქცია 1. შიდა აზომვითი ნახაზის ციფრული ვერსია წარმოდგენილი უნდა იყოს shp და dwg (AutoCAD) ფორმატის ფაილების სახით და უნდა იყოს ქაღალდის ვერსიის შესაბამისი. 2. შიდა აზომვითი ნახაზის ციფრული ვერსიის ორივე ფორმატის ფაილი წარმოდგენილი უნდა იქნეს სახელმწიფო გეოდეზიურ კოორდინატთა სისტემაში (კოორდინატთა სისტემა – WGS84, პროექცია – UTM) და უნდა ასახავდეს უძრავი ნივთის (შენობა-ნაგებობის ერთეულის) მდებარეობას კოორდინატთა სისტემის მიხედვით. აღწერისას გათვალისწინებულ უნდა იქნეს ობიექტების აზომვისა და გამოსახვის უზუსტობა არაუმეტეს 0.5 მ-ისა. 3. შიდა აზომვითი ნახაზის ციფრული ვერსია შედგენილი უნდა იყოს შემდეგ დამოუკიდებელ ფენებად: ა) შენობა-ნაგებობის ერთეულის პოლიგონალური ფენა (unit_polygon.shp); ბ) შენობა-ნაგებობის ერთეულის ხაზოვანი ფენა (unit_line.shp); გ) ვალდებულება (პოლიგონალური ფენა – lease_polygon.shp) – უფლებრივი შეზღუდვის ან/და დატვირთვის გრაფიკული საზღვრები (ასეთის არსებობის შემთხვევაში). 4. შიდა აზომვითი ნახაზის ციფრული ვერსიის პოლიგონალური ფენის (unit_polygon.shp) ატრიბუტული ცხრილი უნდა შეიცავდეს შემდეგ მონაცემებს ობიექტზე (შენობა-ნაგებობის ერთეულზე): ა) მიწის ნაკვეთის საკადასტრო კოდი; ბ) შენობა-ნაგებობის ნომერი, რომელშიც მდებარეობს შენობა-ნაგებობის ერთეული; გ) შენობა-ნაგებობის ერთეულის საკადასტრო კოდი (ასეთის არსებობის შემთხვევაში); დ) სადარბაზო (ასეთის არსებობის შემთხვევაში); ე) სართული; ვ) შენობა-ნაგებობის ერთეულის ნომერი; ზ) მდგომარეობა (აშენებული, მშენებარე, დანგრეული); თ) შენობა-ნაგებობის ერთეულის ფუნქციური დანიშნულება (საცხოვრებელი, არასაცხოვრებელი); ი) შენობა-ნაგებობის ერთეულის კატეგორია, ამ წესის მე-2 მუხლის შესაბამისად; კ) ტიპი (შენობა-ნაგებობის ერთეულის ფართობი, კედელი, კოლონა და სხვა); ლ) ჭერის სიმაღლე (გამოსახული მეტრებში – (მ), დამრგვალებული მეტრის მეასედამდე); მ) კედლებში არსებული სივრცის ფართობი (გამოსახული კვადრატულ მეტრებში (კვ/მ), დამრგვალებული მეასედამდე კვადრატულ მეტრებში); ნ) დაინტერესებული პირი (სახელი, გვარი/პირადი ნომერი); ო) აზომვაზე უფლებამოსილი პირი (სახელი, გვარი და პირადი ნომერი); პ) შენიშვნის ველი. 5. ამ მუხლის მე-4 პუნქტით გათვალისწინებული ცხრილი გამოისახება შემდეგი ნიმუშის მიხედვით:
6. შიდა აზომვითი ნახაზის ციფრული ვერსიის ხაზოვანი ფენის (unit_line.shp) ატრიბუტული ცხრილი უნდა შეიცავდეს ობიექტზე (შენობა-ნაგებობის ერთეულზე) შემდეგ მონაცემებს: ა) მიწის ნაკვეთის საკადასტრო კოდი; ბ) შენობა-ნაგებობის ნომერი, რომელშიც მდებარეობს შენობა-ნაგებობის ერთეული; გ) შენობა-ნაგებობის ერთეულის საკადასტრო კოდი (ასეთის არსებობის შემთხვევაში); დ) ხაზის ტიპი; ე) ხაზის ზომა (გამოსახული მეტრებში – (მ), დამრგვალებული მეტრის მეასედამდე); ვ) შენიშვნის ველი. 7. ამ მუხლის მე-6 პუნქტით გათვალისწინებული ცხრილი გამოისახება შემდეგი ნიმუშის მიხედვით:
8. ვალდებულების (პოლიგონალური ფენა – lease_polygon.shp) – უფლებრივი შეზღუდვის ან/და დატვირთვის (სერვიტუტი, უზუფრუქტი, იჯარა, ქირავნობა, აღნაგობა, იპოთეკა და სხვა) გრაფიკულ საზღვრებთან დაკავშირებით მითითებული უნდა იყოს უფლებრივი შეზღუდვის ან/და დატვირთვის ფართობი (კვ/მ) და შენიშვნის ველი. |
უკან დაბრუნება 










დოკუმენტის კომენტარები