„პოლიგონის, სასროლეთისა და ტირის მოწყობის წესის დამტკიცების შესახებ“ საქართველოს თავდაცვის მინისტრის 2017 წლის 21 აგვისტოს №63 ბრძანებაში ცვლილების შეტანის თაობაზე

„პოლიგონის, სასროლეთისა და ტირის მოწყობის წესის დამტკიცების შესახებ“ საქართველოს თავდაცვის მინისტრის 2017 წლის 21 აგვისტოს №63 ბრძანებაში ცვლილების შეტანის თაობაზე
დოკუმენტის ნომერი 67
დოკუმენტის მიმღები საქართველოს თავდაცვის მინისტრი
მიღების თარიღი 19/10/2021
დოკუმენტის ტიპი საქართველოს მინისტრის ბრძანება
გამოქვეყნების წყარო, თარიღი ვებგვერდი, 20/10/2021
სარეგისტრაციო კოდი 120170050.22.026.016923
67
19/10/2021
ვებგვერდი, 20/10/2021
120170050.22.026.016923
„პოლიგონის, სასროლეთისა და ტირის მოწყობის წესის დამტკიცების შესახებ“ საქართველოს თავდაცვის მინისტრის 2017 წლის 21 აგვისტოს №63 ბრძანებაში ცვლილების შეტანის თაობაზე
საქართველოს თავდაცვის მინისტრი
 

საქართველოს თავდაცვის მინისტრის

ბრძანება №67

2021 წლის 19 ოქტომბერი

ქ. თბილისი

 

„პოლიგონის, სასროლეთისა და ტირის მოწყობის წესის დამტკიცების შესახებ“ საქართველოს თავდაცვის მინისტრის 2017 წლის 21 აგვისტოს №63 ბრძანებაში ცვლილების შეტანის თაობაზე

„ნორმატიული აქტების შესახებ“ საქართველოს ორგანული კანონის მე-20 მუხლის მე-4 პუნქტის საფუძველზე, ვბრძანებ:

მუხლი 1
„პოლიგონის, სასროლეთისა და ტირის მოწყობის წესის დამტკიცების შესახებ“ საქართველოს თავდაცვის მინისტრის 2017 წლის 21 აგვისტოს №63 ბრძანებით (ვებგვერდი, 23/08/2017, სარეგისტრაციო კოდი: 120170050.22.026.016513) დამტკიცებულ წესში შეტანილ იქნეს შემდეგი ცვლილება:

1. მე-2 მუხლი ჩამოყალიბდეს შემდეგი რედაქციით:

„მუხლი 2

ამ წესში გამოყენებულ ტერმინებს აქვთ შემდეგი მნიშვნელობა:

ა) პოლიგონი – შემოსაზღვრული ტერიტორია, რომელიც აერთიანებს სხვადასხვა შეიარაღების, შეიარაღების კომპლექსების სასროლეთებსა და საბრძოლო მანქანების დირექტრისებს, საინჟინრო-საამფეთქებლო სასწავლო და ტაქტიკური სწავლებების არეალს;

ბ) სასროლეთი – ამ წესის დანართი №1-ის „სასროლი იარაღის, ყუმბარსატყორცნების, საბრძოლო მანქანებისა და საარტილერიო შეიარაღების სასროლეთისა და საამფეთქებლო სასწავლო მოედნის მოწყობისა და უსაფრთხოების ზონების სქემების ალბომის“ მიხედვით მოწყობილი ტერიტორია, რომელზედაც სწავლებისთვის განსაზღვრული იარაღიდან და საბრძოლო ტექნიკიდან შესაბამის მანძილზე შესაძლებელია საბრძოლო სროლების  წარმოება;

გ) საბრძოლო მანქანების დირექტრისა – საბრძოლო მანქანებიდან სროლის მიმართულება  როგორც ადგილიდან, ისე მოძრაობის დროს; 

დ) საინჟინრო-საამფეთქებლო სასწავლო არეალი – ტერიტორია, სადაც შესაძლებელია ჩატარდეს როგორც ინდივიდუალური, ისე ქვედანაყოფის სამხედრო საინჟინრო სწავლება, იგი მოიცავს საამფეთქებლო სასწავლო მოედანს ან საინჟინრო ველს;

დ.ა) საამფეთქებლო სასწავლო მოედანი – მიწაყრილებით შემოსაზღვრული ტერიტორია, რომელზეც შესაძლებელია ინდივიდუალური საინჟინრო სწავლების ჩატარება;

დ.ბ) საინჟინრო ველი – ტერიტორია, სადაც შესაძლებელია ჩატარდეს საინჟინრო ქვედანაყოფების სწავლება ან/და მათი სხვადასხვა საინჟინრო სწავლებებში ჩართულობა;

ე) ტაქტიკური სწავლების არეალი – ტერიტორია, რომელიც აკმაყოფილებს საქართველოს თავდაცვის ძალების ქვედანაყოფების მოთხოვნებს საბრძოლო სროლებით ტაქტიკური სწავლების ჩასატარებლად (ასეულის ტაქტიკური ჯგუფი და უფრო მაღალი ზომის ქვედანაყოფი), რომელიც მოიცავს საწვრთნელ ველებს;

ვ) საწვრთნელი ველი – ტერიტორია, რომელიც აკმაყოფილებს საქართველოს თავდაცვის ძალების ქვედანაყოფების მოთხოვნებს ოცეულის ჩათვლით წვრთნების ჩასატარებლად, საბრძოლო სროლებით;

ზ) ტირი – პისტოლეტიდან და მცირეკალიბრიანი შეიარაღებიდან სროლების ჩასატარებლად დახურულ შენობაში მოწყობილი სასროლეთი, სადაც სროლების დროს უსაფრთხოებას უზრუნველყოფს შენობა-ნაგებობის კონსტრუქციები.“.

2. მე-4 მუხლს დაემატოს შემდეგი შინაარსის 31 პუნქტი:

„31. უსაფრთხოების მიზნით დამცავი მიწაყრილ(ებ)ის მოწყობა აუცილებელია, იმ შემთხვევაში, თუ ტყვიის ფრენის ტრაექტორია სცილდება პოლიგონის/სასროლეთის საზღვარს და გადის მის ფარგლებს გარეთ,  ხოლო თუ ტყვიის ფრენის ტრაექტორია არ სცილდება პოლიგონის/სასროლეთის საზღვარს დამცავი მიწაყრილ(ებ)ის მოწყობა აუცილებელი არ არის და უსაფრთხოების კონტროლი შეიძლება განხორციელდეს უსაფრთხოების საგუშაგოებით.“.

3. მე-7 მუხლის:

ა) პირველი პუნქტის:

ა.ა) „ე“ ქვეპუნქტი ჩამოყალიბდეს შემდეგი რედაქციით:

„ე) ღია ან ნახევრადღია სასწავლო კლასები;“;

ა.ბ) შემდეგ დაემატოს შემდეგი შინაარსის 11  პუნქტი:

„11. პოლიგონზე შეიძლება მოეწყოს საინჟინრო-საამფეთქებლო სასწავლო არეალი.“;

ბ) მე-4 პუნქტის „გ“, „თ“ და „კ“ ქვეპუნქტები ჩამოყალიბდეს შემდეგი რედაქციით:

„გ) სველი წერტილები/საველე საპირფარეშოები;

თ) სამიზნეების ტექნიკური მომსახურებისა და შეკეთების ობიექტი (სახელოსნო);

კ) ელექტრომომარაგების ჯიხური;“.

4. მე-8 მუხლის მე-7 და მე-8 პუნქტები ჩამოყალიბდეს შემდეგი რედაქციით:

„7. სამიზნე ველიდან წყლის გადინების მიზნით სასროლეთის ზედაპირი უნდა იყოს გლუვი, მყარი ან საფეხურებიანი. საფეხურის დახრილობა (1%-დან – 2%-მდე) უნდა უზრუნველყოფდეს სანიაღვრე არხებში წყლის გადადინებას.

8. მანძილი ცეცხლის გახსნის ზღუდიდან სამიზნემდე განისაზღვრება სროლის კურსით გათვალისწინებული სავარჯიშოების შესაბამისად. ცეცხლის გახსნის ზღუდესა და სამიზნეს შორის მანძილის ცდომილება შეიძლება იყოს დასაშვები  1%-ით.“.

5. მე-9 მუხლის მე-3 პუნქტი ჩამოყალიბდეს შემდეგი რედაქციით:

„3. რამდენიმე სასროლეთის არსებობის შემთხვევაში სასროლეთები უნდა მოეწყოს ერთმანეთის პარალელურად გამყოფი მიწაყრილებით ან დასაშვებია მარაოსებურად განლაგება ერთიანი ტყვიების/ჭურვების ვარდნის რაიონით. ამასთან, უნდა გამოირიცხოს სამიზნე ველების გადაკვეთა მეზობელი სასროლეთის უსაფრთხოების ზონებით.“.

6. მე-12 მუხლის მე-2 პუნქტი ჩამოყალიბდეს შემდეგი რედაქციით:

„2. გვერდითი უსაფრთხოების მიწაყრილის კიდის მინიმალური მანძილი უახლოეს მსროლელამდე არ უნდა იყოს მსროლელებს შორის ინტერვალის ნახევარზე ნაკლები.“.

7. მე-13 მუხლის მე-2 პუნქტი ჩამოყალიბდეს შემდეგი რედაქციით:

„2. დადგენილ მანძილზე სროლების უსაფრთხოების უზრუნველყოფისთვის წინა და გვერდითი მიწაყრილების უსაფრთხოების კრიტერიუმები და სტანდარტები განისაზღვრება დანართი №7-ის შესაბამისად.“.

8. მე-15 მუხლის მე-2 პუნქტის  „კ“ ქვეპუნქტი ჩამოყალიბდეს შემდეგი რედაქციით:

„კ) ყოველი სროლის მიმართულებაზე სროლის მაქსიმალური მანძილი, ობიექტებისა და ნაგებობების განლაგება, აღნიშვნები და მაჩვენებლები;“.

9. 23-ე მუხლის პირველი პუნქტის „ბ“ და „დ“ ქვეპუნქტები ჩამოყალიბდეს შემდეგი რედაქციით:

„ბ) განსაზღვროს რაიონები, სადაც აკრძალულია ცეცხლის წარმოება, აღნიშნოს მიზნებიდან ქვედანაყოფის უსაფრთხო დაშორების ზღუდეები, ცეცხლის საწარმოებლად დაგეგმილი უბნები, ასევე თითოეული საცეცხლე პოზიციისათვის უსაფრთხოების ზონები;

დ)  საკონტროლო ჯგუფების დახმარებით შეამოწმოს უსაფრთხოების ზონების არსებობა და მათ შესაბამისად შეიარაღებაზე შემზღუდველების არსებობა.“.

10. 26-ე მუხლის პირველი პუნქტი ჩამოყალიბდეს შემდეგი რედაქციით:

„1. პოლიგონზე/სასროლეთზე ყოფნისას ყველა ვინც მონაწილეობას არ იღებს სწავლებაში, უნდა იმყოფებოდეს სანგარში/ბუნკერში ან საბრძოლო მანქანებიდან უსაფრთხო დაშორებულ  მანძილზე.“.

11. 27-ე მუხლის:

ა) პირველი პუნქტის „გ“ ქვეპუნქტი ამოღებულ იქნეს;  

ბ) მე-2 პუნქტის „ბ“ ქვეპუნქტი ამოღებულ იქნეს. 

12. 44-ე მუხლის მე-2 პუნქტის „დ.გ“ ქვეპუნქტი ჩამოყალიბდეს შემდეგი რედაქციით:

„დ.გ) სავენტილაციო სისტემებით;“.

13. 47-ე მუხლის:

ა) პირველი პუნქტი ჩამოყალიბდეს შემდეგი რედაქციით:

„1. „სასროლი იარაღის, ყუმბარსატყორცნების, საბრძოლო მანქანებისა და საარტილერიო შეიარაღების სასროლეთისა და საამფეთქებლო სასწავლო მოედნის მოწყობისა და უსაფრთხოების ზონების სქემების ალბომი“ განისაზღვროს დანართი №1-ის შესაბამისად.“;

ბ) მე-6 პუნქტის შემდეგ დაემატოს შემდეგი შინაარსის მე-7 პუნქტი:

„7. სასროლეთის მოწყობის უსაფრთხოების კრიტერიუმები და სტანდარტები განისაზღვრება დანართი №7-ის მიხედვით.“.

14. №1 დანართის სათაური ჩამოყალიბდეს შემდეგი რედაქციით:

„სასროლი იარაღის, ყუმბარსატყორცნების, საბრძოლო მანქანებისა და საარტილერიო შეიარაღების სასროლეთისა და საამფეთქებლო სასწავლო მოედნის მოწყობისა და უსაფრთხოების ზონების სქემების ალბომი“.

 

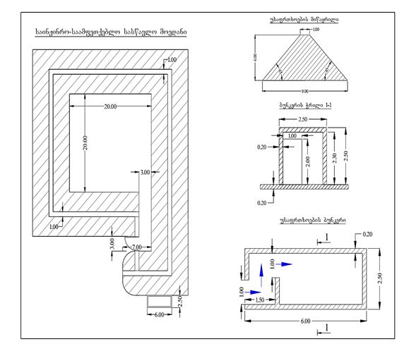
15. №1 დანართს დაემატოს შემდეგი შინაარსის სურათი №15:

 

„სურათი №15. საამფეთქებლო მოედნის ზომები

 

შენიშვნა: აფეთქებების წარმოების დროს პირადი შემადგენლობა უნდა იმყოფებოდეს უსაფრთხოების ბუნკერში.“.

           

16. №6 დანართის მე-4 გრაფა ამოღებულ იქნეს.

 

17. №6 დანართის შემდეგ დაემატოს შემდეგი შინაარსის დანართი №7

„დანართი №7

სასროლეთის მოწყობის უსაფრთხოების კრიტერიუმები და სტანდარტები

სასროლეთის მოწყობისათვის, უსაფრთხოების დაცვის მიზნით სროლის მიმართულებაზე წინ და გვერდებზე ეწყობა ტყვიის დამჭერი წინაღობა, რომელთა მოწყობის მიზანია ტყვიის ფრენის მანძილის, მიმართულებისა და დამაზიანებელი ეფექტების მაქსიმალური შეზღუდვა.

ტყვიის დამჭერი წინაღობა წარმოადგენს მიწაყრილს, ასევე ტერიტორიის ადგილმდებარეობის გათვალისწინებით შესაძლებელია ამ მიზნით გამოყენებულ იქნეს ბუნებრივი ამაღლება  (ბორცვი, გორაკი, მთის ფერდი). ტყვიის დამჭერი წინაღობის დანიშნულებაა, რაც შეიძლება მეტი გასროლილი ტყვიისა და ასხლეტვების შეჩერება უსაფრთხოების ზონაში. მისი ფორმა და კონსტრუქცია (შემადგენლობა) უნდა შეესაბამებოდეს კრიტერიუმებს, რომელიც შემუშავებულია ტყვიების შეკავების შესაძლებლობისათვის. ზომებს, კონსტრუქციასა და მის განლაგებას გააჩნიათ გადამწყვეტი როლი სასროლეთების დაპროექტებისა და უსაფრთხოდ გამოყენების პროცესისთვის.

ტყვიის დამჭერი მიწაყრილის მინიმალური სიმაღლე დამოკიდებულია ცეცხლის წარმოების წესსა და სახეზე. ტყვიის დამჭერი მიწაყრილის სიმაღლე პირდაპირპროპორციულადაა დამოკიდებული ტყვიის მიზანში სროლის მანძილზე:

მიწაყრილის მინიმალური სიმაღლის განმსაზღვრელი ცხრილი:

 

სროლის მანძილი

მიწაყრილის მინიმალური სიმაღლე

1

25 მეტრ მანძილამდე

3 მეტრი

2

50 მეტრი

4 მეტრი

3

75 მეტრი

5 მეტრი

4

100 მეტრი და მეტ მაძილზე

6 მეტრი

 

თუ დამიზნების ხაზი არსებითად დახრილია იარაღის ჰორიზონტთან ან ტყვიის დამჭერი მიწაყრილი ან ბუნებრივი წინაღობა განლაგებულია მაქსიმალურად დაშორებული სამიზნიდან 20 მეტრზე მეტი დაშორებით, მაშინ მიწაყრილის ზომების გასაანგარიშებელ სიმაღლეს უნდა დაემატოს 2 მეტრი. როგორც წინა, ასევე გვერდითი უსაფრთხოების მიწაყრილის ზომები და ფორმა (სიმაღლე, ფუძის და ზედა ნაწილის სიგანე, სიგრძე, გვერდების დახრილობა) განისაზღვრება შემდეგი კრიტერიუმების გათვალისწინებით:

ა) სროლის მანძილი;

ბ) სასროლი იარაღის სახეობა;

გ) სასროლი იარაღის გაფანტვის მაჩვენებლები (ტყვიების/ყუმბარების გაფანტვის ალბათობა);

დ) ტყვიის/ყუმბარის სახეობა;

ე) ტყვიის/ყუმბარის კალიბრი;

ვ) ტყვიის/ყუმბარის  საწყისი სიჩქარე;

ზ) ტყვიის/ყუმბარის გამტარუნარიანობა;

თ) მსროლელის სასროლი პოზიცია; 

ი) სროლის სახეობა (ერთეული, მოკლე და გრძელი ჯერი);

კ) მსროლელის მოძრაობის ალბათობა (ტაქტიკური სროლა);

ლ) რელიეფის ზედაპირის ფორმა (სასროლ მანძილზე).

 

 

თუ ორი პარალელური სასროლეთის ერთმანეთის მოპირდაპირე საცეცხლე ზღუდისა და სამიზნე ველის ნაპირა წერტილების შემაერთებელი ხაზი მიმართულია 30 გრადუსზე მეტი კუთხით სროლის მიმართულებასთან, მაშინ მათ შორის არ ეწყობა გამყოფი მიწაყრილი.

 

თუ ორი პარალელური სასროლეთის ერთმანეთის მოპირდაპირე საცეცხლე ზღუდისა და სამიზნე ველის ნაპირა წერტილების შემაერთებელი ხაზი მიმართულია 5-დან 30 გრადუსზე ნაკლები კუთხით სროლის მიმართულებასთან, მაშინ მათ შორის ეწყობა მინიმუმი 4,3 მ სიმაღლის გამყოფი მიწაყრილი. 

 

დადგენილ მანძილზე სროლის უსაფრთხოების უზრუნველყოფისათვის აუცილებელი წინა და გვერდითი უსაფრთხოების მიწაყრილების სიმაღლე განისაზღვრება შემდეგი ფორმულით:

H = A + C + D

H – წინა უსაფრთხოების მიწაყრილის სიმაღლე (მ);

A – მსროლელის შეცდომა დამიზნებისას – სასროლი იარაღის სამიზნე მოწყობილობის მაქსიმალური ამაღლების პირობებში, ტრაექტორიის ამაღლება დამიზნების ხაზზე მოცემულ მანძილზე (განისაზღვრება ტყვიების ბალისტიკური ცხრილების მიხედვით. საზომი ერთეული – მეტრი);

C – სასროლ პოზიციაში იარაღის მომარჯვების მაქსიმალური სიმაღლე (დაწოლილ – 0.5 მ დაჩოქილ – 0,8 მ. დგომში – 1,5 მ);

D – ერთეული ან ჯერებით სროლის შემთხვევაში გამოყენებული სასროლი იარაღის ტყვიების გაფანტვის (ნატყვიართა დაჯგუფება) მაჩვენებელი (მ) – გაფანტვის ელიფსის სიმაღლის ნახევარი;

მაგალითი: 50 მ სიგანის მქონე შეზღუდულ ტერიტორიაზე, 300 მ მანძილზე, დგომის პოზიციაში  „აკ-74“ ტიპის ავტომატით, ერთეული გასროლებით სროლის დროს განვსაზღვროთ წინა და გვერდითი უსაფრთხოების მიწაყრილების სიმაღლეები.

 

წინა მიწაყრილის სიმაღლის განსაზღვრა:

A = 4,8 მ („ბალისტიკური ცხრილი“)

C = 1,5 მ (დგომის პოზიცია)

D = 0,225 მ (100 მ-ზე შეადგენს 15 სმ-ს, ხოლო 300 მ-ზე სამჯერ მეტს, ე.ი. 45 სმ)

H = 4,8 + 1,5 + 0,225 = 6,525 მ.

 

გვერდითი მიწაყრილის სიმაღლის განსაზღვრა:

A = 2,5 მ („ბალისტიკური ცხრილი“)

C = 1,5 მ (დგომის პოზიცია)

D = 0,225 მ (100 მ-ზე შეადგენს 15 სმ-ს, ხოლო 300 მ-ზე სამჯერ მეტს, ე.ი. 45 სმ)

H = 2,5 + 1,5 + 0,225 = 4,225 მ

 

სასროლეთის სიგანის განსაზღვრა:

სასროლეთის სიგანის განსაზღვრის კრიტერიუმებია:

ა) რელიეფის შეზღუდვები (კლდოვანი ქანები);

ბ) სასროლეთის მოწყობისათვის აუცილებელი მატერიალურ-ტექნიკური საშუალებების  შეზღუდვები;

გ) მსროლელი პ/შ-ის მაქსიმალური რაოდენობა (ათეული/ს.დ. ჯგუფი);

დ) მსროლელებს შორის აუცილებელი ინტერვალი, რომელიც განისაზღვრება სასროლი იარაღიდან გასროლილი მასრის გამოვარდნის შემდეგ მიწაზე დაცემამდე ფრენის მანძილისა და მიმართულებიდან გამომდინარე რისკების მიხედვით;

ე) გვერდითი უსაფრთხოების მიწაყრილის (მარცხენა და მარჯვენა მხარე) ფუძის შუა წერტილიდან უახლოეს მსროლელამდე მინიმალური მანძილი.

სასროლეთის ოპტიმალური სიგანე განისაზღვრება შემდეგი ფორმულით:

h = a X b + c

h – სასროლეთის ოპტიმალური სიგანე (გვერდითი უსაფრთხოების მარცხენა მიწაყრილის ფუძის შუა წერტილიდან  მარჯვენა მიწაყრილის ფუძის შუა წერტილამდე)

a – მსროლელი პ/შ-ის მაქსიმალური რაოდენობა (10 ს/მ);

b – მსროლელებს შორის მინიმალური ინტერვალი (2,5 მ);

c – მარჯვენა და მარცხენა გვერდითი უსაფრთხოების მიწაყრილების ფუძის შუა წერტილებიდან უახლოეს მსროლელამდე მინიმალური მანძილების ჯამი (5 მ + 5 მ = 10 მ).

მაგალითი:  შეზღუდულ ტერიტორიაზე, 100 მ მანძილზე 10 ს/მოსამსახურის მიერ, დგომელა პოზიციაში, „აკ-74“ ტიპის ავტომატით ერთეული გასროლებით სროლისათვის, განვსაზღვროთ სასროლეთის ოპტიმალური სიგანე.

სასროლეთის ოპტიმალური სიგანის განსაზღვრა:

h  = a  X b + c;

h = 2,5 X10 + 10;

h = 35 მ  .“.

მუხლი 2
ეს ბრძანება ამოქმედდეს გამოქვეყნებისთანავე.

საქართველოს თავდაცვის მინისტრიჯუანშერ ბურჭულაძე